Historien om Lille Constantia i Charlottenlund
- side: Lille Constantia, fra Lyststed til Beboelsesejendom
- side: Rundt om Lille Constantia. Ejendomme i Nabolaget og deres Historie
- side: Lille Constantia og Charlottenlund i kulturhistorisk Belysning
- side: Appendiks, Samling af gamle Postkort

Figur 1. ”Carte over en deel af Sockelunds Herred og Kiøbenhavns Amt 1763”, udsnit af koloreret kort ved P.J. Wilster.
Lille Constantia har sin historiske baggrund i områdets naturmæssige skønhed og dets attraktion for Københavnerne. Både kongelige, velhavende borgere og almindelige folk har siden 1700 tallet søgt herud fra det trange København bag voldene.
De har bygget slotte, jagtområder, fasanhave, forstbotanisk have og et større antal lyststeder i vores område. Den jævne befolkning har bare besøgt området, nydt det og fået ny energi til at klare den ofte slidsomme hverdag.
Områdets navn, Charlottenlund, kommer fra vores naboejendom Charlottenlund Slot med omgivende lund bygget i midten af 1700tallet af Prinsesse Charlotte Amalie på grunden af det kongelige jagtsted Gyldenlund. Lundens stramt firkantede areal var kongernes første dyrehave kaldet ”den liden Dyrehave ved Ibstrup”. Det er forgængeren for de store kongelige jagtområder anlagt til parforcejagt, Eremitagen og arealer i Gribskov, der er vist i den indledende figur, det stukne kort fra 1771. Charlottenlund Slot inspirerede succesfulde Københavnske borgere til at bygge lyststeder i form af små palæer med tilhørende parker langs Strandvejen og i hele oplandet. Constantia og Bonne Esperance var blandt de første.

Figur 2. Kildetid i Charlottenlund Skov med telte. I lysningen skimtes Øresund og et skib. Stålstik 1842.
Allerede fra midten af 1700 tallet besøgte som omtalt almindelige folk Charlottenlund Skov i stort antal i sommertiden, særlig ved kildetiden i juni-juli. Omdrejningspunktet var oprindelig Sankt Hansaften, hvor kildevandets helbredende kraft i tidens opfattelse var uomtvistelig. De slog sig ned i Charlottenlund Skov med madkassen og med udsigt til Øresund og adgang til forlystelser. En dags udflugt gjorde det ud for det års sommerferie.
Så kom i løbet af 1800tallet det moderne industrisamfund. Den nu rivende udvikling i økonomi, trafikmidler og så meget andet åbnede for frie initiativer og mangt et entreprenørskab. Dette omskabte Gentofteområdet fra åbent bondegårdslandskab til beboelsesområde med villabebyggelse og høje ejendomme langs Strandvejen. Af de mange private lystejendomme langs vor del af Strandvejen står kun Øregård med den smukke park i dag bevaret. Lyststedet Constantia ud mod Strandvejen blev opført i 1753. Det måtte efter usikre år som traktørsted og restaurant lade livet omkring 1930. Naboen til Constantia ud mod Strandvejen, lyststedet Bonne Esperance opført omkring 1754, holdt til 1890erne. Lyststedernes store grunde oprindelig udformet som velanlagte parkanlæg var blevet af større værdi end de oprindelige bygninger.
Vores ejendom, Lille Constantia, har væsentlige elementer af udviklingen skitseret ovenfor med i sin fortid men alligevel sit eget forløb: tusinder af år tilbage benyttet af bronzealdermennesker, i middelalderen bymark for Gentofte bønderne, så have bag traktørstedet Constantia med tilkøbt areal fra den udflyttede Bregnegården, dernæst to pragtvillaer på grunden, og så endelig den beboelsesejendom med parklignende have, som vi har i dag – glæde á la lyststed for beboerne.

Figur 3. Kort over Gaarden Bernstorff henhörende Trende Bønder Byers Marker, ORDRUP, GIENTOFTE, og WANGEDE, nye indretning til FÆLLEDSKABETS ophævelse. Oeconomiske Inddelning forfattet ved TORKEL BADEN, Mathematice indeelt af F.W. HASTER 1763 og 1766.
Lille Constantia
Lille Constantia opført i 1959 er bygget direkte på en del af Constantias originale kvadratiske grundstykke og på en del af et jordstykke tilkøbt af ejeren af Constantia i 1780erne som en udvidelse af baghaven, købt fra den netop da udflyttede Bregnegård beliggende i Constantias umiddelbare bagland. Stykket var oprindelig hjørnet af Gentofte bøndernes fælles bymark op mod Charlottenlund Skov. Jordstykket havde aldrig været under plov, og det ansås for at være af ret lav bonitet. Jordstykket hørte til delen af bymarken betegnet ”enghaven”. Det har nok været anvendt til sommergræsning for løsgående kvæg. Det vides ikke, hvad Constantia anvendte baghaven og det nyerhvervede areal til; måske som køkkenhave for restauranten eller til græsning af de køreheste, man nok har haft. Bevilling til traktørsted var opnået allerede i 1761.

Figur 4. Kort over Gentofte efter gårdenes udflytning til de agre, de var tildelt ved udskiftningen I 1765, efter Severin Storm 1830. Constantia med hovedparcel, strandparcel og jord købt fra Bregnegården er vist ligesom lyststederne på stribe på landsiden af Strandvejen. Vandsiden var lavt beliggende.
Constantias bygning lå ud mod Strandvejen med som nævnt lyststedet Bonne Esperance som nabo. Entreprenant opsplitning af ejendommen Bonne Esperance i 1890erne med udstykning af dele af denne til villagrunde langs den i 1906 anlagte blinde vej med navn Esperance Allé (de syv ulige numre 5,7,9,11,13,15) satte skred i udviklingen. Det var grosserer H. Cappelen, som i 1892 havde overtaget Bonne Esperance, der tilsyneladende stod for projektet herunder nedrivningen af lyststedets bygning. Arkitekten A. Nielsen, Villa Richmond, Vilvordevej indsendte i 1903 tegninger til Gentofte Kommune over seks smukke villaer på grundene med ulige numre, hvoraf de fire stadig ses på vejen. Nr. 5 er i 1954 veget for garageanlægget ved Blidahlund, og villaen Nr. 15 er i 1981 efter forfald nedrevet og erstattet af Moestrup-rækkehuse. De resterende fire villaer er tidstypiske og fremstår smukke og vel vedligeholdte.
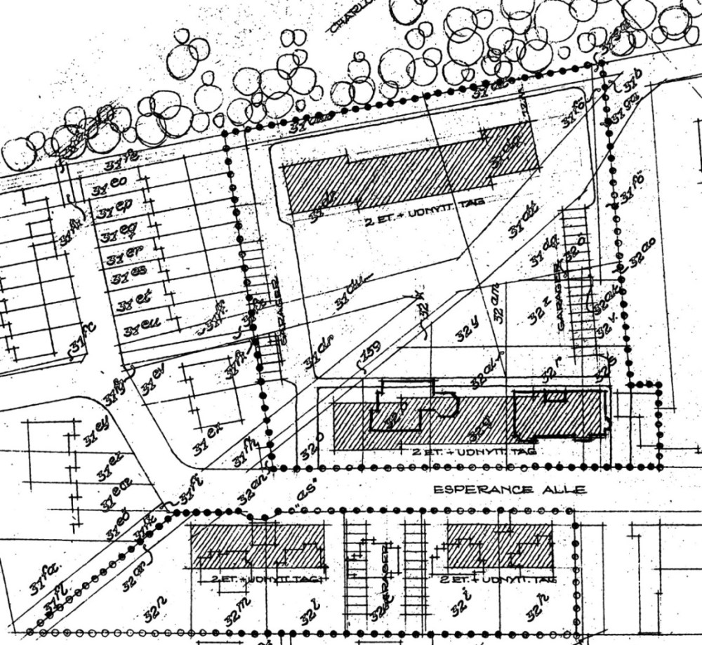
Der hersker stor forvirring omkring husnumrene i vort område. Det har sin ”naturlige” forklaring og afspejler historiens skæve gang, se kortet Figur 22, del 2. Den oprindelige Esperance Allé stoppede ved syd-vest enden af os efter Nr. 15 (nu kaldt 15-19) på den ulige side og ved vor nabo i Nr. 16 på den lige side, der hvor Esperance Allé krydses af den dengang åbne Kildeskovsrende (ses i vejbanen som et stort kvadratisk metaldæksel). Esperance Allé blev omkring 1930 ved et bajonetsving forlænget med numrene 16-34 i forbindelse med en sammenføjning med den ligeledes blinde Viggo Rothesvej, der var udstykket fra Bregnegården. Esperance Allé Nr. 12-14 mangler ligesom Nr. 4. Vor allés forlængelse hinsides Kildeskovsrenden ender stadig, læst ud fra husnumrene, blindt ind mod skoven, hvor der er gulstens rækkehuse på hver side og en gangsti ind i skoven. Fortsættelsen har for øvrigt udelukkende lige numre på begge sider af vejforlængelsen (!). De to rækker af gulstens rækkehuse burde retteligt hedde Constantiavænget (Jvf. Sundvænget) og enten anskaffe sig dette som nyt vejnavn eller inkluderes i Viggo Rothes vej og nummereres herefter, hvilket ville lette overblikket for besøgende i området omkring bajonetsvinget. Viggo Rothesvej sluttede oprindeligt dér, hvor villaerne på dén vej slutter, og hvor de første rækkehuse begynder (disse nummeret med Viggo Rothesvej hhv. Parkvænget numre). Grænsen villa/rækkehus markerer linjen, hvor Bregnegårdsjord i 1780rne, øst for denne linje, blev frasolgt til Constantia. På tegningerne fra 1959 er ejendommen Lille Constantia anført som matrikel nr. 31 dr, du, 32 o, p, q, x, y, 159, Gentofte by. Skæringen mellem den oprindelige Constantia grund (matrikel 31) fra 1753 og den af Constantia tilkøbte jord fra Bregnegården har antagelig ligget på en nord-syd gående linje inde i vores grund (svarende til de nuværende opgange 6A og 10A), vurderet ud fra linjen for de øvrige gamle lyststeders oprindelige bagskel, som Constantias bagskel i sin tid flugtede med.
Projekt Esperance Allé var et villavejsprojekt helt i tidens ånd udtænkt i den periode, hvor gård på gård i Gentofte Kommune i stor skala blev udstykket til villaer. Esperance Allé blev antagelig anlagt i forståelse med Constantias daværende ejer, der besad de lige numres side af vejen og som nok også øjnede muligheder og muligvis bidrog til vejprojektet med en bid af sin jord.
Constantia og vores grund blev kort efter 1900 erhvervet af grosserer Aage Løwener med henblik på at opføre engelske villaer. Løweners far var grundlægger af firmaet Loewener, der fortsat er aktivt som virksomhed. Løwener valgte imidlertid at udleje Constantia som restauration. Grundstykket bag Constantia, der stort set i areal og placering svarede til vores grund, var vanskelig at bebygge med villaer pga. Kildeskovsrenden, der løb diagonalt ind i grunden fra syd-vest til nord-øst, dengang med et knæk midt i vor grund og et videre løb mod Øresund. Renden var på det tidspunkt en åben rende, der kunne lugte ilde og stige over sin bred. Renden blev som beskrevet nedenfor i 1933 rørlagt, reguleret og overdækket med en nordlig forskydning af enden.
Fundamenter aftegnet på matrikel/byplankort og beplantningsplan ved Eywin Langkilde fra 1959 over vores ejendom, se Figur 5, viser tydeligt, at der var bygget to villaer på vores grund, der hvor blok A ligger i dag. Længe troede vi, der var tale om husene Nr. 6 og 8. Men en nøjere granskning af matrikelnumre viste, at det var Nr. 8 og 12, og så faldt tingene på plads.

Figur 5. Matrikelkort med ejendomsprojekt Lille Constantia fra 1958 (blok A vender ud mod vejen, blok B ind mod skoven). Fundamenterne efter de to Villaer Esperance Allé Nr. 8 og Nr. 12 er indtegnet. Kildeskovsrendens diagonale forløb gennem ejendommen fremgår, version efter 1933. Garagestriberne i vest og øst løb evt. ind i gamle servitutter betinget af gamle rende- og rørføringer. Et projekt om to ejendomme på den ”ulige” side af vejen blev ikke realiseret.
I 1906 ansøgtes om opførelse af en to etagers villa på matrikel 32r, adresse Esperance Allé Nr. 8, med placering svarende til Lille Constantia blok A, Nr. 8 A og 8 B. Grosserer Aage Løwener var bygherren. Hans person og hans villa i Nr. 8 senere navngivet ”Lille Constantia” er det primære historiske udgangspunkt bag tilblivelsen af Lille Constantia ejendommen. Villaen var tegnet af arkitekt E. Norup med entreprenør C.F. Jacobsen som bygherre. Det har været en stor palæagtig villa i gedigen stil med symmetriske karnapper mod gaden og sidefløje mod haven centreret om en pompøs veranda med trappe til haven. Villaens spisestue kunne rumme opdækning til 50 gæster. Indvendig var villaen herskabelig med høje paneler, messinggreb og sildebensparket som gulv. I 1919 søgtes der om tilladelse til en gartnerbolig samt to garager på matrikel 32s m.v. svarende til nutidens lille parkeringsplads ved blok A’s østlige gavl op mod Constantia, der hvor skellet mod Constantia har et knæk. Gartnerboligens bagmur lå i skel, i dag synlig som et pudset parti i Constantias gavlmur. Nybygningen var tegnet af arkitekt Carl Brummer, der mest er kendt for Harald Simonsens palæ “Lille Amalienborg” på Østerbrogade. Grosserer Løwener flyttede selv ind i Nr.8 med den store have bag. Efter Løweners død i 1925 var villaen Nr. 8 i et årti lejet af Det Kinesiske Gesandtskab. Den var i den periode på forskellige ejeres hænder.

Figur 6. Villaen Lille Constantia, Esperance Alle 8 fra baghaven. Villaen var opført med mure i grå puds bevokset med vin og forsynet med tegltag. Foto, der er tilvejebragt af Karen Margrete Hjerl, må være taget cirka 1950. Forældrene, Børge Hjerl-Hansen og Grete Marie Hjerl-Hansen står i haven.
I 1947 blev Løweners villa erhvervet af pastor Børge Hjerl-Hansen (1900-1975). Han var fra 1937-57 præst ved Messiaskirken. Allerede i 1947 ansøgte Hjerl-Hansen om etablering af elevator fra kælder til 1.sal og om indretning af børnehave i den særskilte bygning, gartnerboligen. Den optræder som Esperance Allé Nr. 6, bekræftet af Hjerl-Hansens søn. Børnehaven blev etableret og ledet af Rigmor Ellen Reck, fru Hjerl-Hansens søster. Omend datidens børn sikkert har været mere rolige og velopdragne, kom der alligevel i 1953 et antal højstemte klager fra genboen, oberstinden i Nr. 5. Kommunen vurderede dog, at lydene fra børnene faldt i et med støjen fra trafikken på Strandvejen og fra andre børn i området.
Hjerl-Hansen selv var kendt som en yderst karismatisk mand med mange aktiviteter: arkæologiske udgravninger, et omfattende forfatterskab, bredt socialt engagement i bl.a. Kofoeds Skole. Hans far var en kendt erhvervsmand, finansminister og grundlægger af museet Hjerl-Hede. Hustruen Grete Marie Hjerl-Hansen (1917-66), der var en af de første kvindelige civilingeniører i bygning, havde i sommeren 1944 som 30-årig fået polio med svær lammelse af begge ben. Med tre børn var huset ikke velegnet i det lange løb. Familien Hjerl-Hansen valgte i 1954 at fraflytte villaen og bosætte sig i Sorgenfri. Dermed sluttede en glansfuld periode, hvor villaen Lille Constantia med Hjerl-Hansen som drivkraft havde været et kulturelt omdrejningspunkt i sognet som i området.

Figur 7. Et kammerorkester diverterer i spisestuen, Lille Constantia. Børge Hjerl-Hansen spiller tværfløjte, stående i midten af billedet. 2. herre fra v. er familiens læge, på violin. Til h. åbning ud til karnap i husets sydside. Til v. åbning (med bord foran) ud til vinterhaven i østgavlen; ses som runding i Figur 5. Foto tilvejebragt af Karen Margrete Hjerl.
Speciallæge, PhD Karen Margrete Hjerl, ældste datter i familien, giver på opfordring en personlig beskrivelse af livet i Esperance Alle Nr. 8, det første Lille Constantia. Hun boede i huset sine første syv leveår, fra 1947-1954.
”Huset blev indviet på min dåbsdag i 1947 under navnet ”Lille Constantia” iflg. håndskrevet tekst i forbladet til min Fars bibel, ordret gengivet: Vort første barn Karen Margrete Hjerl fødtes 8. juni 1947 og døbtes i Messiaskirken paa moderens 30. aarsdag 8.9.1947. Samtidig indviedes vort nye hjem ”Lille Constantia”, Esperance Allé 8.
Tydeligst husker jeg haven op mod skoven. Den føltes mægtig stor, var præget af en lang plæne og mørke skygger, og man kunne løbe rigtigt langt og meget hurtigt og falde uheldigt. Jeg husker særligt lege omkring det store valnøddetræ, der voksede midt i plænen ned mod skoven. Vi brugte ofte ”røde låge”. Den var placeret nøjagtigt som i dag, ind mod Charlottenlund Skov. Men dengang var lågen uden lås; jeg skulle passe meget på den låge, for den var farlig, og det var meget forbudt at gå alene ind i skoven. Jeg hørte om børnelokkere, bag hvert et træ.
Husets stueetage var de voksnes, med bibliotek, spisestue og vinterhave med statue og planter. Første sal var til familielivet, privaten. Køkkenet var i kælderen, og der var køkkenelevator.
Udsigten fra værelserne ovenpå var domineret af de store træer lige udenfor vinduet. Kastanje- bladenes vekslende figurer var underholdende at se på. Der var fokus på naturglæden. Udendørslivet blev prioriteret højt på trods af min Mors handicap med poliolammelse af begge ben.
Om dagen gik jeg i min mosters børnehave. Den lå i villaens gartnerbolig, placeret lige øst for villaen, ved siden af to garager, klods op af Constantias høje røde mur.
Dagene var primært præget af min Fars arbejde som præst, hans træffetid, der skulle passes og som foregik i biblioteket. Ofte var der folk, der ventede på Far, for han havde travlt, skulle også nå hjemmebesøg og sygebesøg på hospitalerne. De syge var dengang sengeliggende meget længe, og jeg forstod på det hele, at sognebørnene havde megen brug for opmuntrende samtaler med Far og specielt noget, der hed sjælesorg.
Verdenssituationen skulle også passes. Der kom engagerede mennesker i huset. Der blev talt om alvorlige sager, som kunne handle om tab og traumer efter krigen. Jeg husker særligt den nære veninde, som havde mistet sin ægtefælle, Kommandørkaptajn Carl Hammerich, under bombningen af Shell huset.
Huset var spændende for et barn. Man kunne gå på opdagelser, særligt i kælderen, hvor spejderne havde deres lokaler, sager og møder; det lykkedes mig enkelte gange at snige mig derned, uset, og prøve at sidde på spejdernes mangefarvede og dekorerede trebenede skamler. Det var det vildeste. På kvisten boede i en periode et ægtepar, der var flygtninge fra Østrig. Dem gik jeg ofte op og besøgte, for de var hyggelige, og det var en sorg, da de flyttede.
Jeg kunne møde og hilse på mange forskellige i huset. Der var andre pensionærer og personer, der hjalp til i huset. Jeg husker også de regelmæssigt tilbagevendende spilleaftner. Her deltog familiens læge med sin violin; musikken i huset var de særligt gode afbrydelser i hverdagslivet.
Kristendommen blev levet aktivt med grupper og bibelkredse i huset, der var rammen om meget liv, en stor omgangskreds og et selskabsliv, der fyldte meget de første år. Livet i huset var præget af åbenhed og engagement overfor omverdenen. Jeg husker med en særlig varme de mange stærke relationer, som fortsatte efter familiens fraflytning.
Det første Lille Constantia var et hjem for få, et hus for mange.”
Sign. Karen Margrete Hjerl, 16.3.2016

Figur 9. Som kuriosum, tøjbøjle fra entreen i villaen Lille Constantia, i Karen Margrete Hjerls eje. Bøjlen har fint malede blomster i enderne. Den dokumenterer husets navn, som ikke ses i arkivalierne. Bemærk, at lille staves fuldt ud uden forkortning til Ll. Betegnelsen Lille Constantia anvendtes ikke i Løweners tid og var ikke indhugget i Nr. 8’s facade. Navnet må være kommet i brug efter opførelsen af ejendommen Constantia, der logisk var ”den store”, og som havde en sammenlignelig grundplan. Det helt oprindelige Constantia var tydeligvis mindre end Lille Constantia i Nr. 8. I Hjerl-Hansens tid var navnet blevet gængs betegnelse. Med etablering af et byggekonsortium blev det officielt, se nedenfor.
Efter Hjerl-Hansens fraflytning kom der en ”de ikke realiserede projektplaners tid”. I 1954 ansøgtes om opførelse af en villa i ét plan med otte værelser og garage, en plan der dog blev opgivet. Med Hjerl-Hansen som den forsatte ejer var der derefter flere planer på bordet. Der forhørtes om byggeri for Niro Atomizer i forskellige versioner, men Kildeskovsrenden gav problemer bebyggelsesmæssigt. Af den videre dialog med kommunen kan man udlede, at villaen Nr. 8 så fortsatte på lånt tid med lejere som et slags pensionat, indtil det endelige salg til et byggekonsortium med navnet ”Konsortiet Lille Constantia” skete i 1958/59. I vejviseren (der efterregistrerer skete ændringer) år 1959 stod Børge Hjerl-Hansen stadig opført som ejer af Nr. 6-8. Byggekonsortiet Lille Constantia havde på det tidspunkt allerede erhvervet Nr. 12. Med konsortiets sammenlægning – eller rettere genforening – af de to Constantia villagrunde, Nr. 8 og Nr. 12, var så byggegrunden til opførelsen af den nuværende Lille Constantia ejendom endelig klar, inkluderende den i 1933 overdækkede Kildeskovsrende. Parentetisk skal bemærkes, at der tilbage i tiden havde været meget større sammenlægningsplaner omfattende parcellerne på begge sidser af Esperance Alle. I perioden 1919-29 var Aage Løwener ejer både af Constantia og af Bonne Esperance ejendommene, et ejerskab der i 1930-32 overtoges af A. P. Møller og herefter videreførtes af A/S Constantia. Men Esperance Allé med villaerne lå der jo allerede, og det må have sat bom for disse store planer, der kunne have haft et større boligkompleks i området som resultat, en sammenhængende pendant til Blidah Park mellem denne og Charlottenlund Skov. De tidlige anlæggelser af dels Esperance alle med villaer på begge sider dels Kildeskovsrenden kom til at diktere områdets udformning.
I det følgende træder vi skridtet tilbage til de oprindelige villaer på vor grund, særlig Esperance Alle 12, nabovillaen til Løwener og sidenhen Hjerl-Hansen i Nr. 8, som allerede er udførligt bekrevet i det foregående. I 1906 ansøgtes om opførelse af en villa på matrikel 32 o, adresse Esperance Allé 12, tegnet af en velkendt arkitekt, Alexis Prior, med murermester Brunsø som bygherre. Nr. 12 svarer til Lille Constantia blok A, nr. 6A og 6B. Villaen, der blev givet navnet “Strandhøjsparken”, var i romantisk, national stil med sekskantet tårn. Heldigvis var Lokalhistorisk Arkiv i besiddelse af fotos af en bygning, som passer nøjagtig med fundamentets form, se figurerne 5, 10 og 11. I 1913 ansøgtes om tilbygning til Nr. 12, og i 1920 søgtes om bygning af en garage, der sammen med hestestald og havebygning på slump kaldes nr. 10 i visse arkivalier. Et fundamentrids for en sådan separat bebyggelse beliggende bag Nr. 12 på skovsiden af Kildeskovsrenden er indtegnet i beplantningsplanen men ikke i matrikelkortet. Fra 1908 boede ingeniør Marius Ib Nyeboe i villaen Nr. 12. Nyeboe grundlagde en stor fyrings- og bryggeriteknisk virksomhed. Han interesserede sig også for tørvs udnyttelse, hvad der fik stor nationaløkonomisk betydning under besættelsen. På Grønland udvandt han kobber og grafit, og han var et betydeligt aktiv for udforskningen af Grønland og ekspeditionerne der, bl.a. Thuleekspeditionen. Hans efterfølger i nr. 12 var grosserer O.C. Mølgaard Christensen, Hørsholm og Middelfart Tobakspakkerier.

Figur 10. Villaen Esperance Allé Nr. 12, facaden mod vejen med indgangsparti og sekskantet tårn.

Figur 11. Villaen Esperance Allé Nr. 12, husets bagside mod haven og med udsigt til skoven.
Byggekonsortiet bag Ll. Constantia havde murermester Poul E. Svendsen (1912-97) som drivende kraft i et samarbejde med to andre håndværksfirmaer. Svendsen var kritisk med den håndværksmæssige kvalitet uddannet som han var på Haslev Håndværkerhøjskole, datidens elitære skole for bygningshåndværk. Han var i øvrigt aktiv i lokalpolitik og senere medlem af Gentofte Kommunalbestyrelse.
Arkitekterne var Tyge Hvass og Mogens Christensen. Arkitekt Hvass var kendt for en række store opgaver med prominente bygninger, og han var tillige anerkendt som møbelarkitekt. Hans biografi beskrives senere. Ejendommen blev udlagt som to parallelle blokke, blok A ud mod Esperance Allé og blok B op mod skoven. Mellem blokkene blev der anlagt en parklignende have hen over Kildeskovsrenden efter terræn og beplantningsplan udarbejdet i 1959 af den ligeledes kendte landskabsarkitekt Eywin Langkilde. Udformning af garagebuen, diskret forsænket i terrænet og bidragende til havens bløde kurver og kuperede fremtoning er arkitektonisk, funktionsmæssigt og æstetisk i høj klasse.
Byggeperioden inklusive planlægningsfase for opførelse af ejendommen regnes for at være 1958-60. Til grund for byggeriet lå en separat plan, byplansvedtægt 10, der var godkendt af Kommunalbestyrelsen og tinglyst 2. januar 1959, se Figur 5. Punktmarkeringen angiver byplanens gyldighedsområde.

Figur 12. Afbildning af Lille Constantia på salgsskilt anbragt ved ejendommen under dens opførelse I 1959, foto af model af projektet. Vejrliget har sat sit spor på skiltet. Kildeskovsrenden løber omtrent der, hvor den diagonale gangsti er vist.
Der måtte i lighed med villaområdet omkring ejendommen kun være to beboelseslag plus en tagetage dvs. et beboelseslag mindre end ejendomme, der støder ud til Strandvejen. Derfor opførtes ejendommen med en stueetage, en 1. sal og en 2. sal, sidstnævnte med åbne altaner/tagområder, hvorved den udgjorde en teknisk set ”tagetage”. I dag kalder man det penthouse. Det afspejles også i ejendommens ydermur, der ikke er i gul tegl for 2. sals vedkommende. Der var og er i alt 42 lejligheder fordelt på syv opgange. Byplanens fordring af en tilfredsstillende plan for friarealernes udformning kom til udtryk i Arkitekt Langkildes plan, tinglyst 13. januar 1960. Denne plan er efter en mindre justering i 1982 afstedkommet af kontroversielle fældninger af et tinglyst akacietræ og et grantræ stadig gældende. Der må ikke ske væsentlig afvigelse fra haveplanen uden Gentofte Kommunes godkendelse. De store træer er fredede. Beboerne har for øvrigt altid haft stor pietet over for haven eller parken, som er et særkende for ejendommen.
Ejendommen blev bygget som en eksklusiv udlejningsejendom med en vis variation i lejlighedernes størrelse. Det var før ejerlejlighedernes tid. Alle lejligheder fik pejs, parketgulv og separat domestikdør ud til opgangen, og de var indrettet med to toiletter og karbad. Bag køkkenet gemte der sig et pigeværelse. ”Kælderen” var par le terre, høj og over jordniveau, lys og tør og med vaske- og rullefacilitet. Dertil kom et rundhåndet antal garager og P-pladser inkluderet i ejendommen men diskret placerede. Et salgsprospekt fra dengang udstillede fremskridtet.

Figur 13. Tekst til annonceskiltet fra 1959 med anprisning af udstyr og goder
Lejen var høj, måske Danmarks højeste, og lejlighederne blev kaldt ”millionærlejligheder” i en sfære af ophøjet uopnåelighed. Indskuddet var 25.000 kr. for en typisk lejlighed i A-blokken. Lille Constantia medvirkede i øvrigt som eksklusivejendom og kulisse i filmen ”Han, hun, Dirch og Dario” fra 1962.
Ejendommen blev bygget i indledningen af 60ernes opgangstid med hidtil uset ekspansion i dansk økonomi og i boligmassen inklusive sommerhusbyggeri under devisen ”hellere eje end leje”, finessen at ride på inflationsbølgen og vinde friværdi. Det indebar skærpede vilkår for udlejere af dyre lejligheder. Høje Skodsborg byggeriet med Øresundsudsigt opført i 1963 var en værdig konkurrent, og Store Taffelbay bygget kort forinden var også i spil ligesom den lidt ældre Blidah Park. Ejerne af Lille Constantia blev så nødsaget til at udforme individuelle ændringer og sammenlægninger af dele af lejligheder eller hele lejligheder, ændringer der stadig findes i nogle lejligheder som reminiscenser fra den tid. Lille Constantia har i kraft af sit grundkoncept bestået ”the test of time” og er i sin hele indretning egnet til mødet med fremtiden. Til eksempel gør kælderetagen placeret over jordniveau ejendommen ufølsom for klimaforandringer med øget nedbør og stigning af vandstanden i havene.

Figur 14A. Lille Constantia folder sig ud og byder velkommen med diskret elegance. Vis-a-vis ses blok B.

Figur 14B. Lille Constantia, indgangsparti til opgang i blok A. Der er i begge blokke tre etager med beboelser, hvoraf den øverste er ”tagetage” med store åbne terrasser på sydsiden.
Med vedtagelsen af ejerlejlighedsloven i november 1979 med mulighed for etablering af ejerlejligheder i udlejningsejendomme ændrede billedet sig – der er i dag (2016) kun én lejelejlighed tilbage. Lejerforeningen oprettet i 1977 måtte nedlægge sig i 2010, da antal af lejelejligheder kom under lovens minimumskrav, som er fem lejemål. Beboerne er i dag organiserede i Ejerforeningen Lille Constantia. Denne forening repræsenterer suverænt beboerne. Ejendommen ønsker at have en kultur, hvor lejlighedsejerne selv bebor deres lejligheder og værner om ejendommen, og bestyrelsen giver ikke sin tilladelse til, at lejligheder fremlejes.
Og hvem har så boet i ejendommen gennem tiden? Gennem alle årene har beboerne typisk været velkonsoliderede borgere fra det private erhvervsliv eller det offentlige, personer som efter at have afhændet deres huse ønsker en bekvemmere tilværelse og mere frirum. Mange har haft et aktivt liv og mange har det stadig. Den nu afdøde beboer, direktør Kai Ibsen (1916-2011) har i sin biografi, der blev en bestseller, beskrevet sine autentiske oplevelser i den store verden før, under og efter verdenskrigen (”Den Kinesiske Tråd, en dansk familiekrønike”, Forlaget Wøldike 1991). Han boede som ung i Constantia og vendte tilbage til Lille Constantia.
Arkitekten Tyge Hvass (1885-1963) var uddannet på Kunstakademiets Arkitektskole og hos den kendte arkitekt Anton Rosen. Han opmålte og studerede arkitekturen på de dansk-vestindiske øer for Nationalmuseet med fotos udgivet posthumt i 1987. Hvass var international og stod i 1920erne for udformningen af Danmarks repræsentationer ved verdensudstillingerne. Hans tegnestue etableret i 1922 på adressen Tuborgvej 99 stod for en række villaer og enkelte ejendomme i Gentofte Kommune, herunder Lille Constantia. Han tegnede også sparsomt udstyrede ejendomme som Vognmandsmarken på Østerbro, Ved Volden på Christianshavn, og Store Vigerslevgård. Af andre bygninger kan nævnes Willumsenmuseet i Frederiksund, udbygning af Den Frie på Østerbro, Bellahøj bad og friluftsscene, Sorgenfri Kirke og Det Danske hus og Den Danske Kirke i Paris. Som eksempel på et villabyggeri kan den i 1938 for lensgreve Lerche-Lerchenborg opførte og nu fredede villa på Bernstorffsvej 27 anvises. Lille Constantia var hans sidste ejendomsbyggeri. Vi kan nyde hans og Mogens Christensens streg hver dag. Hvass var den overordnede formgiver af ejendommen, som udtrykker hans arkitektur. Mogens Christensen havde sin tegnestue på adressen Ll. Kirkestræde 1, Kbh. K. De var begge arkitekter M.A.A.
Til Lille Constantias historie hører beretningen om Kildeskovsrenden som den gode fe. Renden har altid været bestemt for afledning af overfladevand ved ekstraordinære regnmængder. Den kan spores tilbage til kilderne i terrænet øst for Gentofte landsbys højderyg, ”provstens kilde”. Det var den driftige Provst Hans Jørgen Christian Høegh (1738-1805), som i 1790erne plantede Kildeskoven ved kilden. Udskiftningen af bondejorden og den nøjagtige matrikelopdeling af bondegårdsjorden medførte samtidig regulering og anlæggelse af veje, bl.a. Bernstorffsvejen anlagt i 1770erne efter tidens snorlige vejideal for prominente veje. Det implicerede også gravning af render til afvanding og et system af vejgrøfter, hvoraf nogle samledes i Kildeskovsrenden førende fra Kildeskoven ned mod vort område, andre i den mere nordligt beliggende Bernstorffsrende (sidegren til Kildeskovsrenden) og den op mod Klampenborg beliggende Enghaverende, som fik eget udløb i Øresund. Det var i 1870erne, før kloakkernes tid, at Kildeskovsrenden blev endeligt etableret som en åben rende, der blev gravet diagonalt gennem vor grund og hen over Strandlund området ud til Øresund. Den hastige overgang fra bondeland til villaby i slutningen af 1800 tallet og manglen på kloakering medførte overbelastning og en vis grad af utilsigtet anvendelse af renden. Vandklosetter begyndte at komme i brug. Gentofte blev systematisk kloakeret omkring 1910, noget tidligere i det i 1853 hårdt koleraangrebne Skovshoved. En vest-østgående hovedledning af kloakken førende ud i Øresund blev nedgravet langs Charlottenlund Skovens skel i lige linje gennem Viggo Rothesvej udstykningens baghaver og videre frem under vor nuværende vej langs med blok B. Den blev anlagt med en pumpestation i Restaurant Constantias have op mod skoven, et fint lille hvidt hus. Stationen er siden flyttet ud til kysten mellem Fortet og Strandlund og bærer stadig navnet Constantia Pumpestation. Vores grund har således to store separerede underjordiske afledninger for vand, en diagonalt til overfladevand (Kildeskovsrenden) og en langs skovens skel til spildevand/kloak. Man kan slet ikke se det, hvis man ikke lige ved det. Kildeskovsrenden opsamler i dag overfladevand fra et bredt opland i Maglegårdsoplandet og fra et i 2013 anlagt stort underjordisk regnvandsbassin, en cisterne, under HIKs baner ved Maglegårdsskolen. Renden udmunder i Øresund ved Constantia Pumpestation, gennem en robust granithugget åbning.
Kildeskovsrenden blev overdækket og indkapslet i stål og beton i 1933. Problemet med gener var dermed helt ude af verden, og borgernes mange klager over smuds og lugt havde virket. Kildeskovsrenden har utvivlsomt påvirket Grosserer Løweners dispositioner omkring Constantia og placering af skel og de to villaer, som så ret tilfældigt blev begunstiget med de meget store og dybe baghaver. Det fremgår af et kort over lokalområdet, se Figur 22 i del 2, at rendens gamle forløb med et knæk midt i vor grund omkring 1930 må være ændret og for den sidste del parallelforskudt mod nord fra en position mellem villaerne Strandlund og Vennerslund til en ny position ved grænsen mellem Fortet og Strandlund, der hvor Constantia Pumpestation i dag er placeret ved Øresund. A.P. Møller, som i 1930 ejede både villaen Strandlund og Constantias grundstykke har utvivlsomt i forening med Gentofte Kommune stået bag. Flytning af renden gjorde hans grundstykke klart til opførelsen af boligejendommen Constantia, en bygning opført i stor længde og tæt på skoven. Kildeskovsrendens knæk ligger i dag i skellet mellem Constantia og os, klods på skoven ud for blok B’s østgavl, der hvor haveaffald deponeres. Tidligere lå det skarpe knæk midt i vores plæne, antagelig på stedet, hvor renden i dag faktisk har en lille bøjning, med et firkantet metaldæksel i plænen over. Herfra løb renden oprindeligt direkte ud til Øresund.
Kildeskovsrenden er områdets gode fe i tilfælde af excessiv regn. Den forhindrer oversvømmelser i huse og af veje og tunneller i baglandet ved uvejr. Renden er gennemgribende renoveret med nye betonforinger i 2015, og den vil holde vor tid ud og mere til. Den lever i utilnærmelig stadighed som en slags underjordisk ”kongevej” for vand, lige i linjeføring, diagonalt gennem vores grund, konsekvent og urørlig efter helt egen regel. Og den er udover at være en sikring mod vandskader også en helt gratis forsikring mod byggelystne entreprenørskaber. Og den er vores personlige gode fe. Vi kan takke Kildeskovsrenden, som der heldigvis ikke må bebygges hen over, for at vi har fået den have eller park, vi i dag har det privilegium at kunne nyde med følelsen, at vi bor i et lyststed, selvom der under os skjult for øje og øre ligger to store kommunale afledningsveje for vand m.v.